Residential Projects
Thornwood Commons
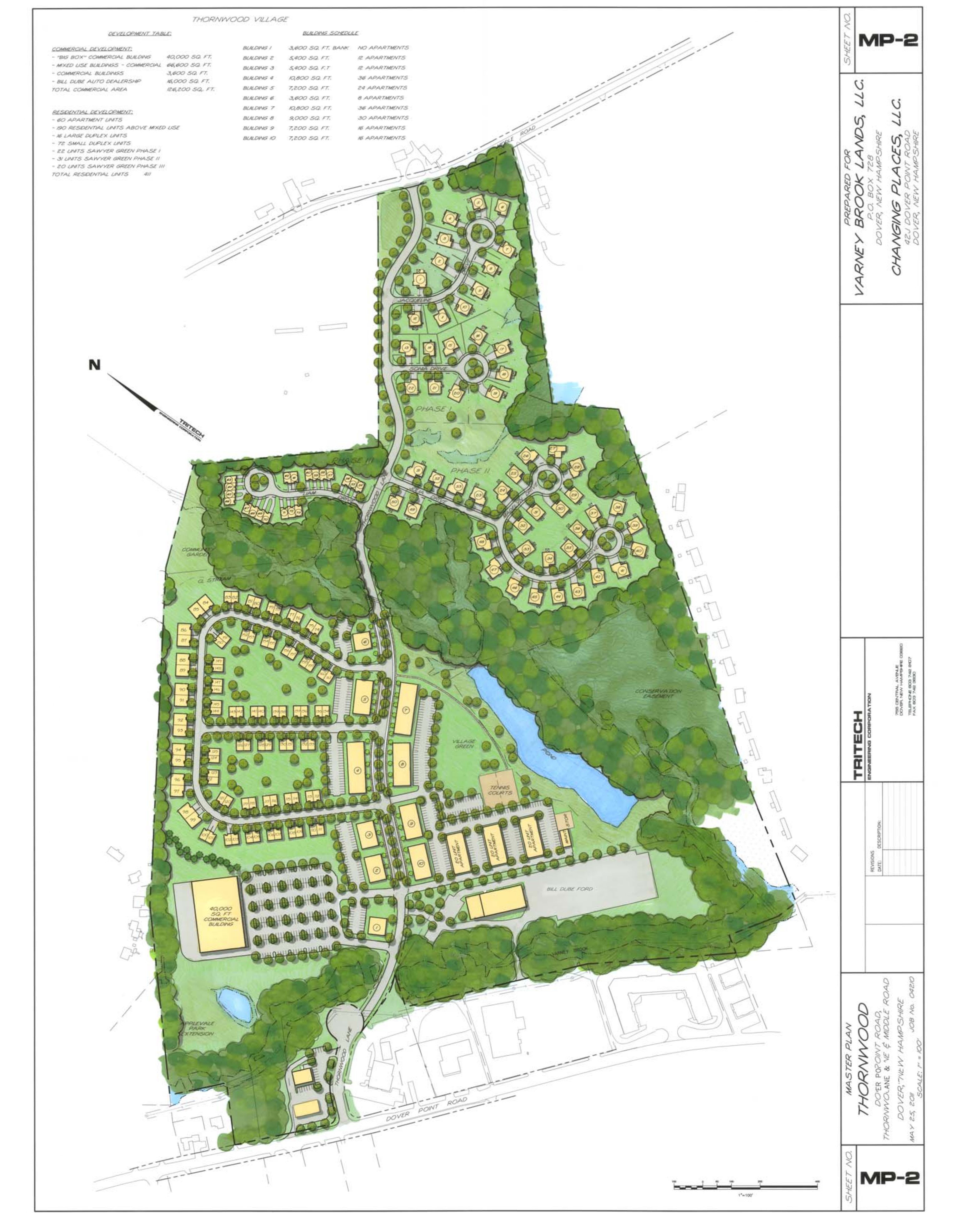
Thornwood Commons is a 100+ acre redevelopment that includes a large residential component featuring 48 energy-efficient, green-design, age-restricted single-family homes. The project integrates residential living with commercial and congregate care facilities while preserving natural features.
Key Design Elements:
- 100K+ sq. ft. retail space
- 100K+ sq. ft. office space
- 112-unit congregate care facility
- Energy-efficient “green home” design
- 3,700 ft public roadway
- Two 10-foot span arched culverts
- Pond reutilized as a detention basin
- Dam Breach Analysis
